Imagine transforming your kitchen into a space that perfectly suits your style and needs. Whether you're dreaming of a sleek modern look or a cozy traditional vibe, drawing your own kitchen plans is the first step to making it a reality.
You don’t need to be a professional designer to create a layout that works for you. With the right guidance, you can craft a kitchen plan that maximizes both function and aesthetics. Ready to unlock the secrets of designing your ideal kitchen?
Stick with us, and you'll find out just how simple and rewarding this process can be. Your dream kitchen is just a few steps away!
Key Elements Of Kitchen Plans
Drawing kitchen plans needs careful thought. Good plans make kitchens easy to use and nice to look at.
This guide covers the main parts to focus on when drawing your kitchen layout.
Work Triangle Concept
The work triangle links the sink, stove, and fridge. These are the three most used spots.
A good triangle saves steps and time while cooking. Keep the paths clear and short.
- The triangle sides should be between 4 and 9 feet long.
- Paths should not cross or have obstacles.
- Keep the area open for easy movement.
Storage Solutions
Storage helps keep your kitchen clean and organized. Plan for enough cabinets and drawers.
Think about what you use most and keep those items easy to reach.
- Use tall cabinets for pots and pans.
- Include pull-out shelves for better access.
- Designate a spot for pantry items.
Appliance Placement
Place appliances where they work best. Keep them near the work triangle for easy use.
Allow enough space around appliances for safety and comfort.
- Put the fridge near the kitchen entrance.
- Place the stove with enough counter space on both sides.
- Keep the dishwasher next to the sink.

Credit: www.fiverr.com
Measuring Your Kitchen Space
Drawing kitchen plans starts with measuring your kitchen space accurately. This helps you design a layout that fits your needs.
Take your time to get correct measurements. This makes sure your kitchen plan works well in real life.
Accurate Dimensions
Use a tape measure to get the length and width of your kitchen walls. Measure from corner to corner for precise data.
Write down the measurements clearly. Double-check each number to avoid mistakes in your plan.
- Measure all four walls
- Note down the height from floor to ceiling
- Measure twice for accuracy
Identifying Obstacles
Look for obstacles like pipes, vents, or columns in your kitchen. These affect where you can place cabinets and appliances.
Mark obstacles on your plan with exact measurements. This keeps your design practical and safe.
- Check walls and floors for fixed objects
- Measure size and location of obstacles
- Include obstacles in your drawing
Accounting For Doors And Windows
Doors and windows change how your kitchen looks and works. Measure their width, height, and position on walls.
Note how doors open and if windows have sills or ledges. This helps plan around them.
- Measure door width and height
- Record the distance from doors to corners
- Measure window size and height from floor
- Mark door swings and window openings
Choosing The Right Layout
Drawing kitchen plans starts with picking the right layout. The layout decides how your kitchen looks and works.
Good layouts save space and make cooking easier. Let’s explore common kitchen layouts to help you choose.
Single Wall Design
This design places all kitchen elements on one wall. It fits small spaces like studio apartments.
The single wall layout keeps things simple. You can reach everything without moving much.
Galley Kitchen
A galley kitchen has two parallel walls with work areas. It works well in narrow spaces.
This layout allows easy movement between cooking, cleaning, and storage zones.
- Use one wall for cooking and the other for cleaning
- Keep the walkway wide enough for comfort
- Maximize storage with cabinets above and below counters
L-shaped Layout
The L-shaped kitchen uses two walls that meet at a corner. It fits many room sizes.
This design offers good workspace and allows a dining area or island nearby.
- Place sink on one wall and stove on the other
- Use the corner space with special cabinets
- Leave space for a small table if desired
U-shaped Setup
The U-shaped kitchen wraps around three walls. It gives lots of counter space.
This layout is great for multiple cooks and large kitchens.
- Keep the stove, sink, and fridge in a triangle
- Use lower cabinets for pots and pans
- Add overhead cabinets for extra storage
Island Integration
An island is a free-standing counter in the kitchen center. It adds workspace and seating.
Islands fit well with L-shaped or U-shaped kitchens. They allow more storage and prep area.
- Use the island for cooking or cleaning if plumbing allows
- Add bar stools for casual dining
- Include drawers and shelves for tools and utensils

Credit: www.staxtradecentres.co.uk
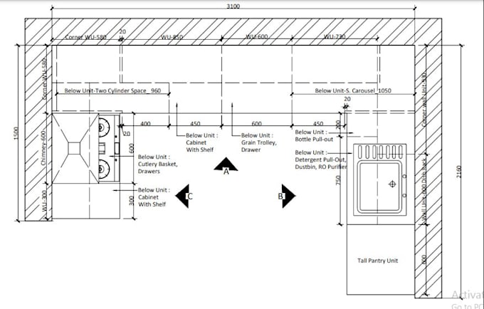
Drawing Tools And Techniques
Drawing kitchen plans needs the right tools and clear techniques. You can draw by hand or use digital tools.
Good planning helps you visualize space and layout. This guide covers useful ways to draw kitchen plans.
Using Graph Paper
Graph paper helps keep your drawings neat and to scale. Each square can represent a set measurement.
Use a pencil to draw outlines and add details like cabinets and appliances. Erase mistakes easily.
- Choose graph paper with squares that match your scale
- Draw walls first, then add doors and windows
- Mark appliances and furniture to check space
Digital Design Software
Digital tools make it easy to edit and save your kitchen plans. Many have drag-and-drop features.
You can try free or paid software depending on your needs. They often include templates and 3D views.
- Use software with simple user interfaces
- Check for kitchen-specific templates
- Preview your design in 3D if possible
Sketching Tips
Start with a rough sketch to plan your layout. Keep lines light so you can change them.
Focus on important details like sink and stove placement. Use symbols to show fixtures clearly.
- Draw large shapes first, then add small details
- Label parts to avoid confusion
- Use a ruler for straight lines
Planning Electrical And Plumbing
When drawing kitchen plans, it is important to plan electrical and plumbing carefully. These systems make your kitchen functional and safe.
Proper planning helps avoid costly changes during or after construction. Focus on outlet placement, lighting, and water supply.
Outlet Placement
Place outlets near countertops for appliances like mixers and coffee makers. Avoid placing outlets behind large appliances to keep them accessible.
- Put outlets at least every 4 feet along countertops.
- Include dedicated circuits for heavy appliances like ovens and refrigerators.
- Plan outlets above kitchen islands for flexible appliance use.
- Make sure outlets near the sink have ground fault circuit interrupters (GFCI).
Lighting Considerations
Good lighting improves visibility and safety in the kitchen. Use a mix of general, task, and accent lighting.
| Lighting Type | Purpose | Placement |
| General | Light the whole kitchen | Ceiling-mounted fixtures |
| Task | Light work areas | Under cabinets, above counters |
| Accent | Highlight features | Above cabinets, inside glass shelves |
Water Supply And Drainage
Plan water pipes and drains to connect the sink, dishwasher, and refrigerator. Keep pipes inside walls or under floors to save space.
- Locate water supply lines near sink and appliances.
- Use durable pipes to prevent leaks.
- Ensure proper slope for drainage pipes.
- Include shut-off valves for easy maintenance.
Optimizing Workflow And Safety
Designing kitchen plans carefully helps improve work speed and reduce risks. A good layout supports smooth cooking and cleaning tasks.
Safety is key in the kitchen. Proper planning prevents accidents and keeps everyone safe while working in the space.
Clear Pathways
Keep walkways free from clutter to allow easy movement. Clear paths help avoid trips and falls in the kitchen.
- Make sure aisles are at least 36 inches wide
- Place appliances and furniture to avoid blocking routes
- Use storage that keeps items off the floor
- Keep trash bins in spots that do not block walking areas
Ergonomic Heights
Set counters and shelves at heights that reduce bending and stretching. This lowers strain and speeds up kitchen tasks.
| Kitchen Feature | Recommended Height |
| Countertops | 36 inches (standard) |
| Cooking Surface | 34-36 inches |
| Sink | 33-36 inches |
| Upper Cabinets | 54 inches from floor |
Fire Safety Measures
Include fire safety tools and design features to protect the kitchen. Proper placement helps control small fires quickly.
- Install smoke detectors near cooking areas
- Keep a fire extinguisher within easy reach
- Plan for good ventilation to reduce smoke
- Use non-flammable materials for walls and counters
- Avoid placing flammable items near the stove
Incorporating Style And Function
Drawing kitchen plans requires a careful mix of style and function. A good plan makes cooking easy and looks great.
Think about how you will use the kitchen every day. Then add design choices that fit your taste and needs.
Choosing Materials
Pick materials that are strong and easy to clean. Kitchen surfaces should resist heat, stains, and scratches.
Use materials that match your style but also last long. Combining wood, stone, and metal can create a nice look.
- Granite or quartz for countertops
- Tile or hardwood for floors
- Stainless steel for appliances
- Wood or laminate for cabinets
Color Schemes
Choose colors that make the kitchen feel bright and inviting. Light colors make small kitchens seem larger.
Mix neutral tones with a splash of color. This keeps the space calm but adds interest.
- White and gray for a clean look
- Blue or green for a fresh feel
- Warm tones like beige or brown for coziness
- Bold colors for accents, like red or yellow
Balancing Aesthetics And Practicality
Good kitchen plans look nice and work well. Think about storage, lighting, and space for moving around.
Keep the design simple but smart. Avoid clutter and choose fixtures that are easy to use and clean.
- Include enough cabinets and drawers
- Plan good lighting over work areas
- Leave clear paths for cooking and cleaning
- Use durable materials that match the style
Common Mistakes To Avoid
Drawing kitchen plans can be tricky if you do not avoid some common mistakes. These errors can make your kitchen less functional and less comfortable.
This guide explains key mistakes to watch out for. Avoiding them will help you create a better kitchen layout.
Overcrowding The Space
Putting too many items or appliances in one area makes the kitchen feel cramped. It limits your movement and workspace.
Leave enough space between cabinets, counters, and appliances. This helps with easy cooking and cleaning.
- Keep at least 36 inches clear for walking paths
- Allow enough counter space for food prep
- Don’t place large appliances too close together
Ignoring Ventilation
Good ventilation removes cooking smells, smoke, and moisture. Without it, your kitchen can get uncomfortable and unhealthy.
Include a range hood or exhaust fan in your kitchen plan. Make sure windows or vents are placed well.
- Choose a hood that fits your cooktop size
- Place vents near cooking areas
- Check local building codes for ventilation rules
Poor Lighting Choices
Bad lighting makes cooking harder and can cause accidents. Dim or uneven light is not good for kitchen work.
Plan for a mix of task, ambient, and accent lighting. Use bright lights near counters and stove areas.
- Use LED lights for energy saving and brightness
- Install under-cabinet lights for counter areas
- Include ceiling lights for overall illumination

Credit: foyr.com
Frequently Asked Questions
What Tools Do I Need To Draw Kitchen Plans?
To draw kitchen plans, use graph paper, pencils, rulers, and measuring tape. Software like SketchUp or AutoCAD also helps. These tools ensure accuracy and clear layout visualization.
How Do I Measure My Kitchen Space Accurately?
Measure the kitchen length, width, and height. Note the location of doors, windows, and utilities. Accurate measurements prevent design errors and optimize space usage.
What Are The Key Elements In A Kitchen Plan?
Include cabinetry, appliances, sink, countertops, and lighting in your plan. Focus on workflow, storage, and safety. This creates a functional and efficient kitchen layout.
How Do I Ensure My Kitchen Plan Is Functional?
Design for the kitchen work triangle: stove, sink, and refrigerator. Ensure enough counter space and easy movement. This improves cooking efficiency and comfort.
Conclusion
Drawing kitchen plans takes time and practice. Start with a simple layout and add details step by step. Measure your space carefully to avoid mistakes. Think about how you use your kitchen every day. Place appliances and cabinets where they are easy to reach.
Keep your design clear and easy to read. This way, your kitchen plan will help build a space you love. Keep trying and improving your skills with each plan you draw.



